буклет Loft M
Серия Loft - коллекция Loft M, также предлагается использовать, как альтернативу серии Simple Vitrage.
Особенностями нового продукта являются:
- возможность установки магнитного замка AGB 35;
- прямая кромка полотна.
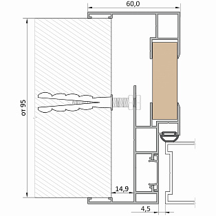
Дверные полотна устанавливаются с помощью нового комплекта трехсекционных петель, учитывающего их прямую кромку.
Рекомендуемые размеры полотна: по высоте 600-2800мм; по ширине 400-950мм.
Для создания стиля Loft стекло можно декорировать накладками, придавая дверям разные формы по желанию заказчика.
По вертикали устанавливаются накладки толщиной 10 мм, по горизонтали - 9 мм.


На данный момент предусмотрены следующие стандартные решения:
профиль порошковая окраска в цвет:
RAL 9006 (серый полумат); RAL 7021 (тёмно-серый муар).
заполнение стекло прозрачное, закалённое – 4 мм.
фурнитура
магнитный замок - AGB 35
ответная часть - AGB Media Polaris minimal
нажимной гарнитур - сплошной (FST-03) или раздельный (FST-04 PZ или WC)
нажимной гарнитур FST-03, FST-04 PZ, FST-04 WC

размер стандартных полотен: 2050х830х40 (подходит для установки в строительный проем 2100х900)
Возможны дополнительные решения по цвету профиля, материалу заполнения и фурнитуре.